Мы используем куки-файлы. Соглашение об использовании
Помещение свободного назначения, 50,5 м²

Продается помещение свободного назначения, 50,5 м²

Площадь50,5 м²
Этаж1 из 1
ПомещениеСвободно
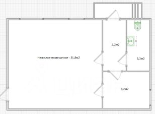
Выгодное предложение для вашего бизнеса в пгт. Серышево! Предлагается к продаже коммерческое помещение, расположенное по адресу: ул. Куйбышева, 29. Это удобное место для развития вашего дела в активно развивающемся посёлке! Локация:Помещение является пристройкой к 5-этажному кирпичному дому, построенному в 1982 году. Это обеспечивает стабильный поток потенциальных клиентов.Удобная транспортная доступность: всего 25-30 минут на автомобиле до города Белогорск. Расширьте горизонты своего бизнеса!Площадь и планировка:Общая площадь 50,5 м, полезная площадь 31,8 м.Высота потолков 2,85 м создает ощущение простора и свободы.В наличии санузел и подсобное помещение для комфортной работы. Бонусы:Ранее помещение использовалось под магазин.Всё оборудование, которое вы видите на фотографиях, остаётся новому владельцу! Это отличная возможность начать свой бизнес практически сразу, без дополнительных затрат. Гибкие условия:Рассматривается обмен на квартиру или автомобиль. Ваши предложения приветствуются!Не упустите шанс приобрести коммерческое помещение с отличным потенциалом в удобном месте! Пишите прямо сейчас, чтобы узнать подробности и договориться о просмотре!
lock

Войдите или зарегистрируйтесь
для просмотра информации

Просматривайте условия сделки и всю информацию об объекте
Сохраняйте фильтры в поиске и не вводите заново
Доступ к избранному с любого устройства
Неограниченное добавление в избранное
Позвоните автору
Вам ответят на все вопросы
Остались вопросы по объявлению?
Позвоните владельцу объявления и уточните необходимую информацию.
  • Инфраструктура
  • Похожие рядом
  • Общая площадь50,5 м²
Помощь надёжных риелторов
Риелтор партнёр Циан поможет купить или продать любую недвижимость
1 700 000 ₽
22 353 $
18 968
Цена за метр
33 664 ₽
Налог
НДС включен: 306 557 ₽
Агентство недвижимости
Документы проверены
На Циан
8 лет
Объектов в работе
176