Мы используем куки-файлы. Соглашение об использовании

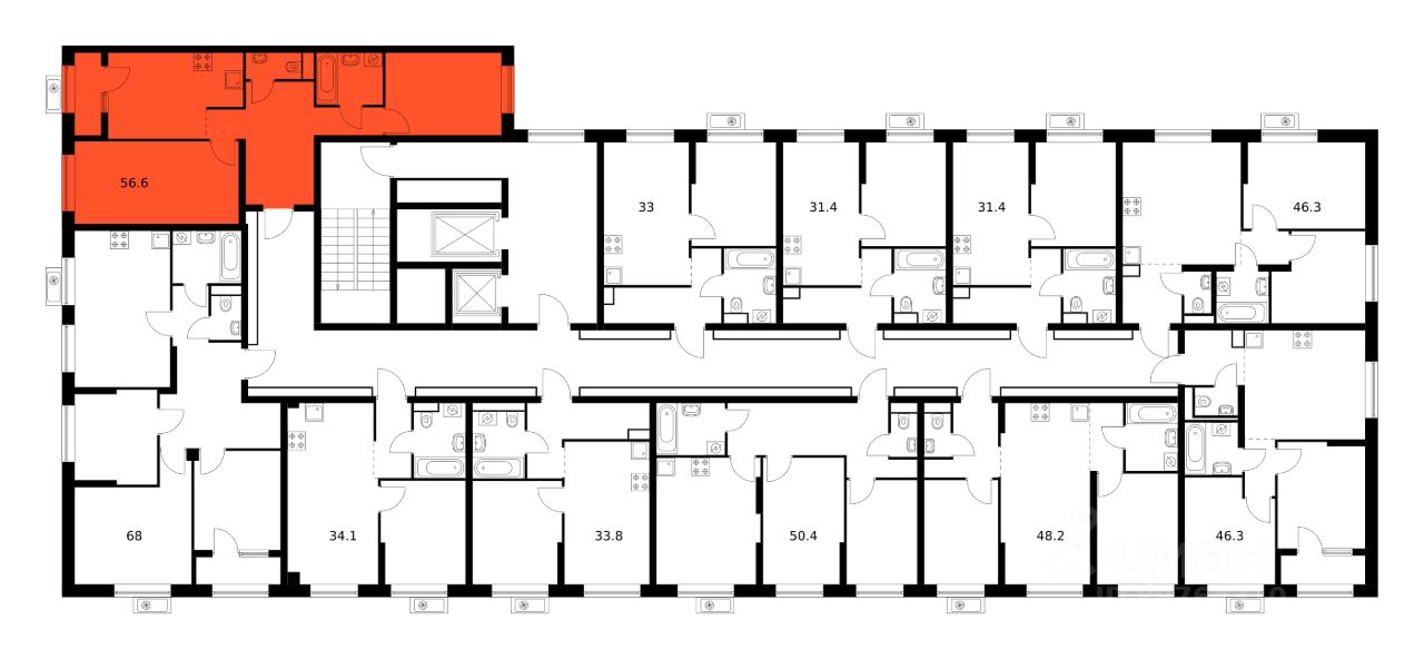
Продается 2-комн. квартира, 56,6 м²

Общая площадь56,6 м²
Жилая площадь26 м²
Площадь кухни11,5 м²
Этаж5 из 9
Год сдачи2024
ДомСдан
ОтделкаПредчистовая
Продаётся 2-комн. квартира площадью 56,6 кв.м на 5 этаже 9 этажного дома (Корпус 7, Секция 1) проекта ПИК Зея парк. Светлый просторный подъезд на уровне земли, функциональная планировка, большие окна, предчистовая отделка. "Зея парк" - новый квартал со всем необходимым для комфортной жизни. До центра Благовещенска - 15 минут. Внутри "Зея парка" много места для тихих прогулок и активного отдыха. В каждом дворе будет парк с детскими и спортивными площадками. Рядом с домами пройдёт широкий пешеходный бульвар, где мы установим удобные скамейки и высадим кустарники и цветы и взрослые деревья. В квартиры и дворы сможет беспрепятственно проникать солнце благодаря переменной высоте корпусов - 9 и 16 этажей. В домах будут просторные и светлые подъезды с дизайнерской отделкой, витражным остеклением и двумя выходами на уровне земли: во двор и на улицу. В квартирах большие окна, застеклённые балконы и лоджии — будет светло и уютно даже зимой. Все квартиры сдаются с предчистовой отделкой: самые грязные и шумные работы к моменту выдачи ключей уже закончатся. На первых этажах домов разместятся магазины, кафе и другие сервисы, а на подземных — индивидуальные кладовые. В 1013 минутах пути на машине — парк Дружбы, аквапарк "Плаза" и ТРЦ "Острова". Рядом с жилым кварталом есть автобусная остановка, от которой можно добраться в любую часть города. Артикул 910220 (Застройщик ООО "СЗ "ПИК Благовещенск")

О квартире

Тип жилья

Новостройка

Общая площадь

56,6 м²

Жилая площадь

26 м²

Площадь кухни

11,5 м²

Высота потолков

2,66 м

Санузел

1 совмещенный, 1 раздельный

Балкон/лоджия

1 лоджия

Вид из окон

На улицу и двор

Отделка

Предчистовая

О доме

Количество лифтов

2 пассажирских

Тип дома

Монолитный

Парковка

Наземная

Понравилась квартира — узнайте о ней больше

Застройщик ответит на все вопросы

Отделка квартиры

Предчистовая — остаётся установить сантехнику, розетки, двери и навести красоту: поклеить обои и уложить на пол покрытие

Варианты отделки в ЖК

  • Предчистовая
  • Без отделки

О ЖК «Зея парк»

  • Сдача комплекса
    Сдача в 2—4 кв. 2026, есть сданные
  • Застройщик
    ПИК
  • Класс
    Комфорт
  • Тип дома
    Монолитно-кирпичный, монолитный
  • Парковка
    Гостевая
  • Отделка
    Без отделки, предчистовая
  • Тип комплекса
    Жилой комплекс
Похоже на то, что вы ищете?

Особенности жилого комплекса

  • Внутренний двор

  • Архитектура

  • Входная группа

  • Лифт

Подробнее о жилом комплексе

Акции в ЖК «Зея парк»

Узнайте про персональные условия и дополнительные скидки при покупке квартиры у застройщика
logo

-4% с промокодом ВЕСНАМЕЧТА

Рассрочка на 6 месяцев

Рассрочка на 3 месяца

Ипотечный калькулятор
  • Базовая
  • Семейная
  • ИТ-ипотека
  • 20%
  • 30%
  • 40%
  • 50%
лет
  • 10 лет
  • 20 лет
  • 30 лет
Загружаем предложения от застройщика и банков

Расположение

Корпус проверен наш.дом.рф
Обновлено 27 марта 2025
  • Нет в реестре проблемных объектов
  • Застройщик не банкрот

Ещё квартиры в жилом комплексе

80 квартир в продаже · Сдача в 2—4 кв. 2026, есть сданные
Автор объявления

Застройщик «ПИК»

Надежный застройщик
ПИК, основанная в 1994 году, является одним из ведущих российских публичных девелоперов жилой недвижимости. Компания реализует масштабные проекты в Москве, Московской области, Санкт-Петербурге и других регионах России. Приоритетное направление деятельност...
8 300 276 ₽
Цена за метр
146 648 ₽/м²
Условия сделки
долевое участие (214-ФЗ)
В топ-3 рейтинга ЦианВ общем рейтинге застройщиков
31 000 мест в детсадах и школахОбеспечили с 1994 года
27 000 000 м²Ввели в эксплуатацию с 1993 года