Мы используем куки-файлы. Соглашение об использовании

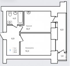
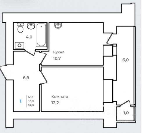
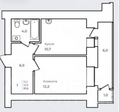
Продается 1-комн. квартира, 37,3 м²

Общая площадь37,3 м²
Жилая площадь12,2 м²
Площадь кухни10,7 м²
Этаж8 из 14
Год постройки2026
Арт. 92222157. Предлагается к продаже однокомнатная квартира улучшенной планировки в доме комфорт-класса. Санузел совмещенный. Выход на лоджию с кухни и комнаты.Окна выходят на восток с видом на реку Зея. Coвpемeнный жилой комплекc нa беpeгу реки Зея c рaзвитой инфрacтpуктурoй и блaгоустроенной территорией. Инфраструктура: школа 17, детский сад 40 собственный пешеходный бульвар со сквером. Детские и спортивные площадки. Закрытые парковки. Гостевые стоянки для автомобилей. На территории "Зейского бульвара" появятся торговый центр и административное здание, в котором планируется разместить тренажерный зал, магазины, аптеки, салоны красоты, кофейни и другие заведения. Всё для комфортной жизни будет в шаговой доступности! Жители жилого комплекса не будут испытывать трудностей при выборе детского сада для своих детей, так как в рамках проекта планируется построить новый детский сад на 120 мест. Ближайшая школа 17 находится всего в 500 метрах от территории "Зейского бульвара". Еще одна особенность квартала — "парящий" ресторан над рекой. Его построят на стыке берега Зеи и воды, и благодаря панорамному остеклению, гостей ждет ощущение, что он завис прямо над рекой. Станьте собственником квартиры вашей мычты уже сейчас! Поможем в одобрении ипотеки! Подходит под все виды льготных программ! Звоните! С радостью отвечу на все вопросы! Компания "Сделка" входит в ТОП 4 крупных агентств города и состоит в Амурской Ассоциации Риэлторов (ААР) и Российской Гильдии Риэлторов (РГР), что гарантирует качественное оказание юридических услуг и высокий сервис обслуживания!
Позвоните автору
Вам ответят на все вопросы

О квартире

Тип жилья

Вторичка

Общая площадь

37,3 м²

Жилая площадь

12,2 м²

Площадь кухни

10,7 м²

Высота потолков

2,7 м

Санузел

1 совмещенный

Балкон/лоджия

1 лоджия

Вид из окон

На улицу

Ремонт

Без ремонта

О доме

Год постройки

1997

Количество лифтов

1 пассажирский

Тип дома

Панельный

Тип перекрытий

Железобетонные

Подъезды

1

Парковка

Наземная

Отопление

Центральное

Аварийность

Нет

Спросите умного помощника
Получите экспертное мнение о жилье

Расположение

Ипотечный калькулятор
  • Базовая
  • Семейная
  • ИТ-ипотека
  • 20%
  • 30%
  • 40%
  • 50%
лет
  • 10 лет
  • 20 лет
  • 30 лет
Загружаем предложения от застройщика и банков
Помощь риелтора
Проверенный риелтор поможет купить или продать квартиру
РиелторСделка
Суперагент
6 341 000 ₽
Цена за метр
170 000 ₽/м²
Условия сделки
свободная продажа
Ипотека
возможна
Агентство недвижимости
На Циан
5 лет
Объектов в работе
146
Риелтор
Суперагент