Мы используем куки-файлы. Соглашение об использовании
Только на Циан
Общая площадь90,9 м²
Участок6 сот.
Материал домаГазосиликатный блок
Этажей в доме1
Год постройки2023
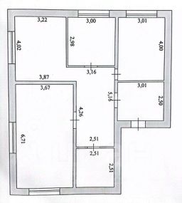
Код объекта: 1924416. Продается дом 90,9 кв. м в с. Kантон -Koммуна, 2023года постройки от физ.лица. Подходит под ДВ, СЕЛЬСКУЮ ипoтеки! Земля категории ИЖС-6соток Комфортная и удобная планировка дома Кухня - гостиная, Три спальни, Сан узел-совмещенный, Холл. Фундамент монолитная плита обработан гидроизоляционной мастикой, с разводкой теплый пол по всему дому, разводка сантехники. Дом построен из газобетоновых блоков хорошей геометрии хорошо держит тепло. Наружная отделка дома - облицовочный кирпич (Цвет орех) Цоколь облицовочный кирпич-высота 5 шт. Внутренние стены пескоблоки, можно сверлить и вешать домашние предметы. Пескоблоки - 20 см , штукатурка -гипсовая -вытянутые стены , сразу можно наносить обои или декоративную штукатурку. Предчистовая отделка стен; Проводка ГОСТ- по всем комнатам; Кровля металочерепица цвет шоколад; Свесы кровли подшиты софитами, с встроенными по периметру освещением; Утепление кровли -утеплитель 12 см, пенопласт 20 плотности. Перекрытие брус - 6 метровый, утепление- 4 слоя усы, запенен. Высота потолков - 3 метра . Окна МПО - 7,5 м профиль , пяти камерные Входная качественная дверь с терморазрывам, специальная уличная на 2 замка. Скважинав 13м хорошего качества вода . Свет 15 кВт - разводка электричества по дому 220/ Вт Септик 8,6 кубов новый сваренный не б/у промазан , сделана гидроизоляция СТРОИТЕЛЬСТВО ДОМОВ, КОТТЕДЖЕЙ! Возможны варианты разных планировочных решений! Строительство индивидуального жилого дома, от 80 м² +- гараж на земельном участке 15 сот. категория ЛПХ. Строительстро дома по договору подряда. Подходит под льготную ипотеку Работаю со всеми видами оплаты, ипотека, сертификаты, материнский капитал Успейте подать заявку до Нового года!!! Цена дома изменится Все подробности на консультации. Полное юридическое сопровождение на всех этапах сделки. Помощь в одобрении ипотеки по выгодным условиям. Организую показ в удобное время. Остались вопросы - звоните. С уважением, Ваш эксперт по недвижимости Оксана -АН Твои Стены
Позвоните автору
Вам ответят на все вопросы

О доме

Площадь

90,9 м²

Материал дома

Газосиликатный блок

Количество этажей

1

Количество спален

3

Год постройки

2023

Об участке

Площадь

6 сот.

Статус участка

Индивидуальное жилищное строительство

Коммуникации и удобства

Канализация

Есть

Водоснабжение

Скважина

Электричество

Есть

Спросите умного помощника
Получите экспертное мнение о жилье

Расположение

Подпишитесь на объявления в этой локации
Мы сообщим, как только поблизости появится что‑нибудь новенькое
Ипотечный калькулятор
  • Базовая
  • Семейная
  • ИТ-ипотека
  • 20%
  • 30%
  • 40%
  • 50%
лет
  • 10 лет
  • 20 лет
  • 30 лет
Загружаем предложения от застройщика и банков
РиелторТвои Стены
Хотите продать недвижимость?Разместите объявление на ЦианРазместить
8 000 000 ₽
Цена за метр
88 009 ₽/м²
Ипотека
возможна
Агентство недвижимости
На Циан
2 года
Объектов в работе
79