Мы используем куки-файлы. Соглашение об использовании
Площадь дома108 м²
Участок6 сот.
Материал домаГазобетонный блок
Этажей в доме1
Год постройки2025
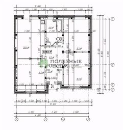
ДОМ С РЕМОНТОМ!!! Узнай подробно!!! Готовые дома от застройщика Юридическое лицо. Полный пакет документов. Дом на фундаменте 450 мм с утеплением. Монолитный каркас + газоблок. Фасад облицовочный кирпич. Площадь дома 108 м² Жилые: 3 спальни (15,1 м² +15,1 м² + 16,2 м²) + кухня-гостиная 21 м² Отопление теплый пол Участок 7,0 сот. Скважина 25 м Септик 6 куб м Дом сдается в предчистовой отделке, идеально ровные стены и полы Шикарная локация, прекрасный дом с отличной планировкой. Отличная цена!!! Этот дом идеально подойдет для тех, кто мечтает о спокойной жизни недалеко от города, но без городской суеты. В нем вы сможете наслаждаться комфортом и уютом с загородной жизни. Приглашаем вас на просмотр этого замечательного дома и убедиться во всех его преимуществах. Спешите, возможно, это именно ваша мечта о доме, которая ждет своего нового хозяина! Компания предоставляет профессиональное юридическое сопровождение сделки и помощь в одобрении ипотеки с пониженной процентной ставкой от банков-партнеров! Арт. 100162728
Позвоните автору
Вам ответят на все вопросы

О доме

Площадь

108 м²

Материал дома

Газобетонный блок

Количество этажей

1

Количество спален

3

Год постройки

2025

Об участке

Площадь

6 сот.

Статус участка

Индивидуальное жилищное строительство

Коммуникации и удобства

Санузел

1 в доме

Канализация

Есть

Водоснабжение

Скважина

Отопление

Электрическое

Электричество

Есть

Газ

Нет

Спросите умного помощника
Получите экспертное мнение о жилье

Расположение

Подпишитесь на объявления в этой локации
Мы сообщим, как только поблизости появится что‑нибудь новенькое
Ипотечный калькулятор
  • Базовая
  • Семейная
  • ИТ-ипотека
  • 20%
  • 30%
  • 40%
  • 50%
лет
  • 10 лет
  • 20 лет
  • 30 лет
Загружаем предложения от застройщика и банков
Хотите продать недвижимость?Разместите объявление на ЦианРазместить
10 800 000 ₽
Цена за метр
100 000 ₽/м²
Ипотека
возможна
Агентство недвижимости
Документы проверены
На Циан
4 года
Объектов в работе
72