Мы используем куки-файлы. Соглашение об использовании

Продается 1-этажный дом, 29,3 м²

Общая площадь29,3 м²
Участок14,85 сот.
Материал домаДеревянный
Этажей в доме1
Год постройки1958
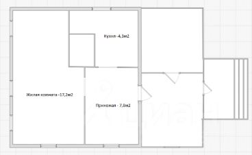
Ваш шанс жить в центре Серышево! Дом + 15 соток ухоженной земли ждут Вас! Местоположение: Центр поселка, ул. Ленина. В шаговой доступности вся необходимая инфраструктура: магазины, администрация, миграционная служба, МФЦ, школа и детский сад. Идеальное расположение для комфортной жизни! Дом: Площадь: 29,3 м - уютное пространство для жизни. Планировка: 1 жилая комната (17,2 м), просторная кухня (4,3 м) и прихожая (7,8 м). Отопление: Печное-водяное надежное и проверенное временем решение. Материал: Брус, 1958 года постройки дом прочный и основательный. Фундамент: Железобетонный гарантия долговечности. Состояние: Дом в хорошем состоянии, ежедневно протоплялся зимой, что помогло сохранить его в отличном состоянии. Участок: Площадь: 14,85 сотки большой, просторный участок. Огород: Удобрен и ухожен, готов к вашим садоводческим идеям. Насаждения: Радуют уже имеющиеся кустарники и деревья: жимолость, смородина, слива, а также грядки с клубникой. Преимущества: Центральное расположение: Все необходимое под рукой! Крепкий дом: Отличный фундамент и стены, готовые к дальнейшей эксплуатации. Ухоженный участок: Возможность сразу наслаждаться урожаем и садоводством. Юридическая чистота: Сделка проходит под контролем агентства недвижимости Монополия, гарантируя безопасность. Остались вопросы? Нашите мне и я предоставлю более подробную информацию и запишу на просмотр!
Позвоните автору
Вам ответят на все вопросы

О доме

Площадь

29,3 м²

Материал дома

Деревянный

Количество этажей

1

Год постройки

1958

Об участке

Площадь

14,85 сот.

Статус участка

Личное подсобное хозяйство

Коммуникации и удобства

Санузел

В доме

Канализация

Есть

Спросите умного помощника
Получите экспертное мнение о жилье

Расположение

Подпишитесь на объявления в этой локации
Мы сообщим, как только поблизости появится что‑нибудь новенькое
Ипотечный калькулятор
  • Базовая
  • Семейная
  • ИТ-ипотека
  • 20%
  • 30%
  • 40%
  • 50%
лет
  • 10 лет
  • 20 лет
  • 30 лет
Загружаем предложения от застройщика и банков
Хотите продать недвижимость?Разместите объявление на ЦианРазместить
900 000 ₽
Цена за метр
30 717 ₽/м²
Агентство недвижимости
Документы проверены
На Циан
8 лет
Объектов в работе
176