

145 000 ₽/м²
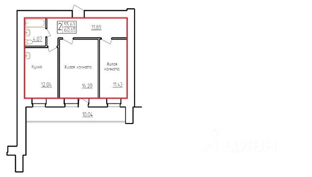
Продаётся 2-комнатная квартира в сданном доме (Литер 1, этап 1.1), срок сдачи: IV-кв. 2025, общей площадью 60.04 кв.м., на 6 этаже. "Лазурный берег" расположился прямо на берегу большой реки, на участке изрезанной, неправильной формы, что в итоге становится преимуществом: создался живописный рисунок улиц с изогнутыми линиями, и любая прогулка превращается в интересное времяпрепровождение. На каждом повороте взгляду открываются новые картины: этому способствуют и разноуровневые дома, и необычные фасадные элементы, и архитектурный декор. Это стало еще одной отличительной чертой жилого комплекса "Лазурный берег". В "Лазурном берегу" дворы полностью закрыты для машин. Доступ автомобилей невозможен, а потому во внутреннем пространстве комплекса есть много места для людей: здесь можно спокойно играть и заниматься спортом. В случае необходимости во двор сможет въехать только специальная техника - пожарная машина или машина скорой помощи. Для машин предусмотрен комплекс наземных паркингов. Инфраструктурные объекты и точки интереса рассредоточены по всей территории жилого комплекса. Таким образом, жители домов с коммерческими площадями не будут страдать от большого потока покупателей, а у всех жителей всегда будет повод пройтись разными маршрутами. Жилой комплекс будет оснащен инфраструктурой современного города. Не нужно выезжать за пределы "Лазурного берега", чтобы отдать ребенка в детский сад, сходить в парикмахерскую, купить букет цветов или отметить семейное торжество. Такая автономность особенно важна для семей с детьми и родителями-пенсионерами. Практически во всех жилых комплексах эконом-сегмента предусмотрена инфраструктура для детей (игровые площадки). На "Лазурном берегу" имеются большие площади для неспешных прогулок, а также романтические бульвары, которые дают возможность жителям отдыхать, в полной мере пользуясь уникальным расположением жилого комплекса на берегу реки. Во-первых, в жилых комплексах, спроектированных по этим принципам, есть ярко выраженный центр - в "Лазурном берегу" это набережная Зеи, сформированная как пешеходная зона, с велосипедными дорожками, местами отдыха украшенная ротондами и беседками. Во-вторых, в них представлены различные типы домов и жилье на очень разный кошелек и вкус, так чтобы и молодые, и пожилые, и состоятельные, и небогатые смогли приобрести нужную им квартиру. В-третьих, школа располагается так, чтобы дети могли идти домой пешком, а детские площадки расположены в шаговой доступности от дома. В четвертых, в кварталах созданы сразу несколько пешеходных и автомобильных дорог, что позволяет равномерно распределить уличное движение на разных направлениях. Все это позволяет сделать "Лазурный берег" неповторимым, уникальным и комфортным для жизни районом Благовещенска. В жилом комплексе не будет ни одного повторяющегося дома. Все фасады разные за счет нескольких оттенков кирпича и натуральной штукатурки (светло-серый, бежевый, терракотовый, желтый, даже синий), разнообразного рисунка окон и декор






































































































